

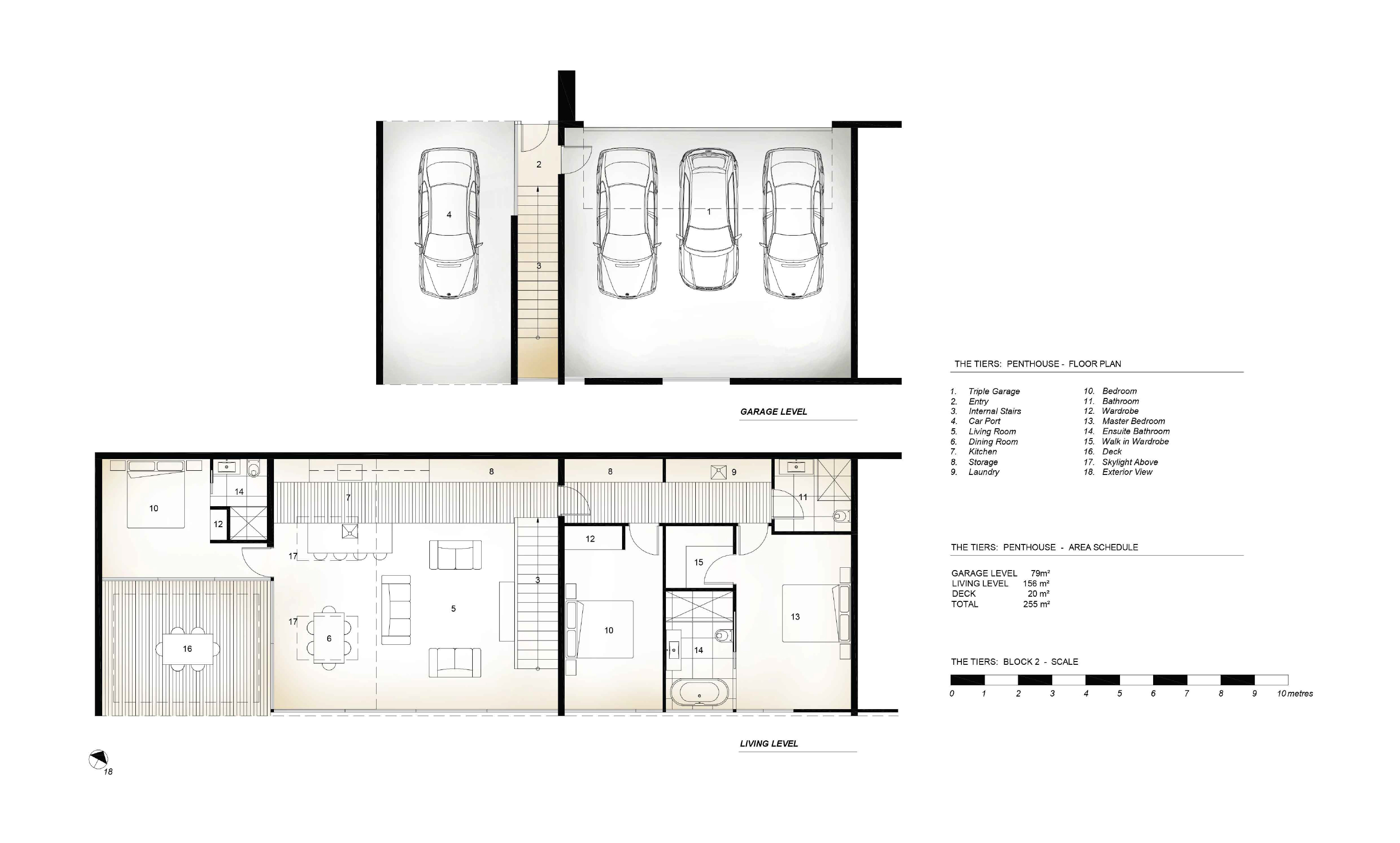
The Tiers
The Tiers subdivision nestled between Queenstown and Frankton is a unique mix of townhouses and penthouses built to heigh modern specifications. Move in or invest, either way you will be impressed by the quality of finish and depth of design. Crafted by exceptional team of architects and interior desginers, this development impresses whilst being obtainable.
Location
658 Frankton Road, Queenstown
Within 10 minutes drive of either central Queenstown or the International Airport and amenities of Frankton, location is everything with The Tiers. Elevated above the hustle and bustle of Frankton Road, awe inspiring lake and mountain views are a given. Here you have one of the Wakatipu’s most enviable locations.
The Building
Soaring ridgelines
The Wakatipu is defined by magnificent steep slopes and soaring ridgelines, reflected in the aesthetic of The Tiers. Built on a steep site to maximise the views of each abode, the drama outside the windows is matched only by the quality of design and finishes within.
Pre Construction Renders
Finished Product
Inside Living
Living is made easy
Light filled interiors are a standout while living is made easy with high standard insulation, double glazing and a variety of heating options. Outstanding fixtures and fittings add to the feeling of quality in this new development.
Outside Living
Sit back and relax
The fully landscaped, low maintenance exteriors allow you to enjoy the lake to Remarkables views from your private balcony - panoramic views and privacy. Plan today’s adventure whilst drinking your coffee on the balcony and afterwards entertain your friends, or just sit back and relax.
The Units
